atelier  pulfer  aeberhard

Seilerstrasse 8  |   3011 Bern   |   +41 76 346 69 60   |   atelier@pulfer-aeberhard.ch

info

Aufstockung, Fabrikgebäude in Leissigen

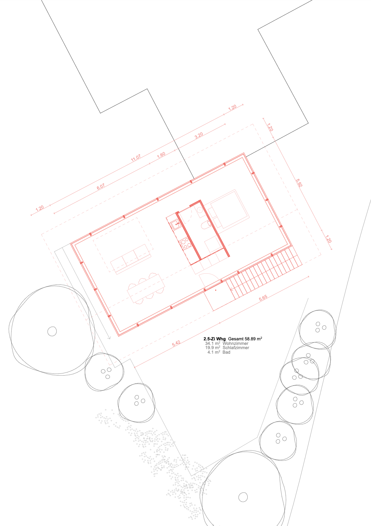
Im Rahmen von Machbarkeitsstudien untersuchen wir gezielt Aufstockungspotenziale bestehender Gebäude, wie etwa an der geschichtsträchtigen Gützli-Fabrik Steuri. Dabei analysieren wir bauliche, strukturelle und wirtschaftliche Rahmenbedingungen und entwickeln konkrete Szenarien zur Nachverdichtung. Unser Fokus liegt auf der Schaffung zusätzlichen Wohnraums innerhalb bestehender Siedlungsstrukturen – präzise, nachhaltig und im Dialog mit dem Bestand. Unsere Expertise im Holzbau ermöglicht dabei nachhaltige Lösungen mit hoher architektonischer Qualität.

Projekt: 2025/26

Ort: Leissigen (BE)

Bauherrschaft: Privat

Bildbeschrieb

Grundriss, Studie

Bildbeschrieb

Luftbild der ehemaligen Biscuit Fabrik Steuri

Bildbeschrieb

Schnitt, Studie