atelier  pulfer  aeberhard

Seilerstrasse 8  |   3011 Bern   |   +41 76 346 69 60   |   atelier@pulfer-aeberhard.ch

info

Personalwohnungen, Grand Resort Bad Ragaz

Planung eines Personalhauses für das Grand Resort Bad Ragaz. Der Neubau erweitert die bestehende Struktur und fasst gemeinsam mit dem Bestand eine begrünte Hofsituation. Durch den Versatz zweier klarer Baukörper entsteht ein gut besonnter Gemeinschaftsbereich mit hoher Aufenthaltsqualität – sowohl in den Morgen- als auch in den Abendstunden.

PROJEKT: 2025 -

ORT: Bad Ragaz (SG)

Bauherrschaft: Grand Resort, Bad Ragaz

Beschrieb

Fassadenansicht West

Beschrieb

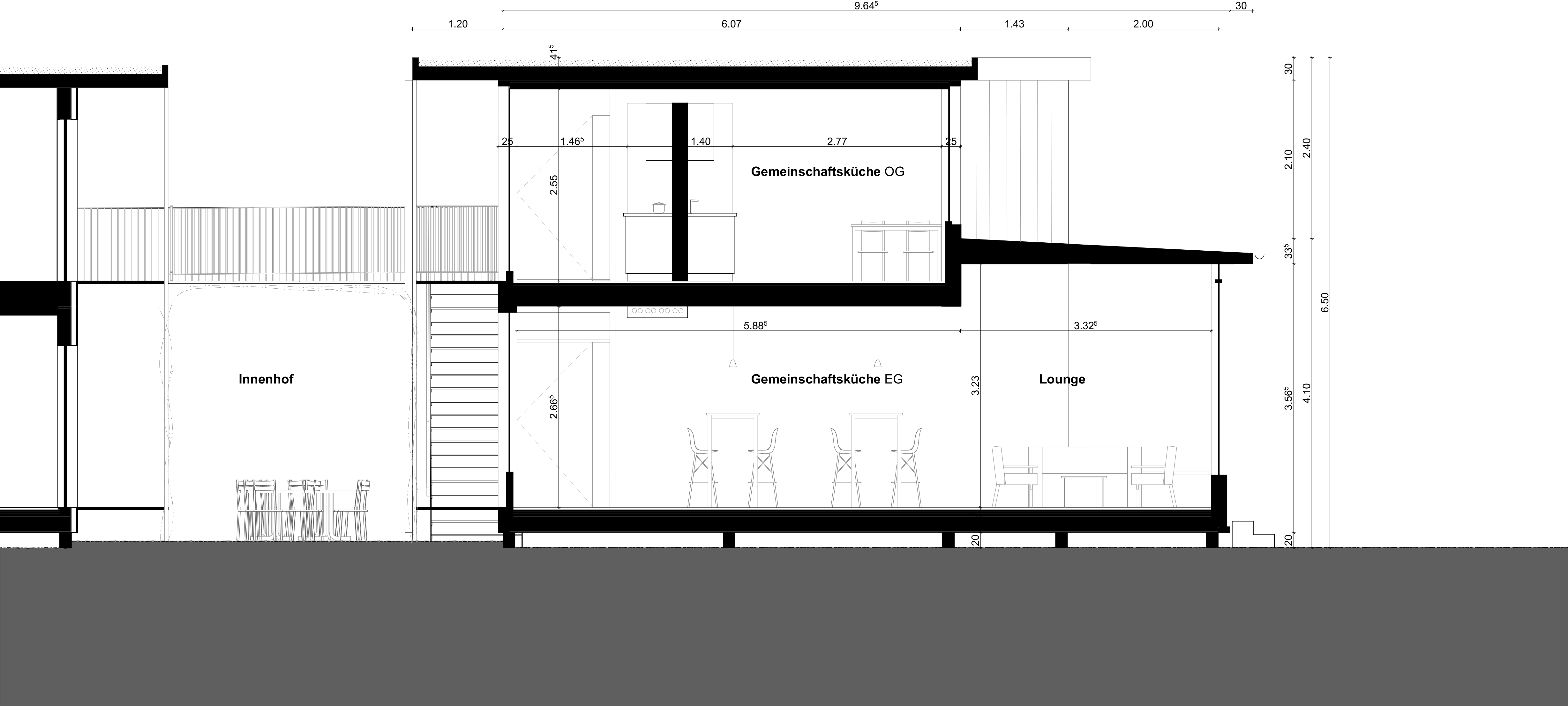
Querschnitt

Beschrieb

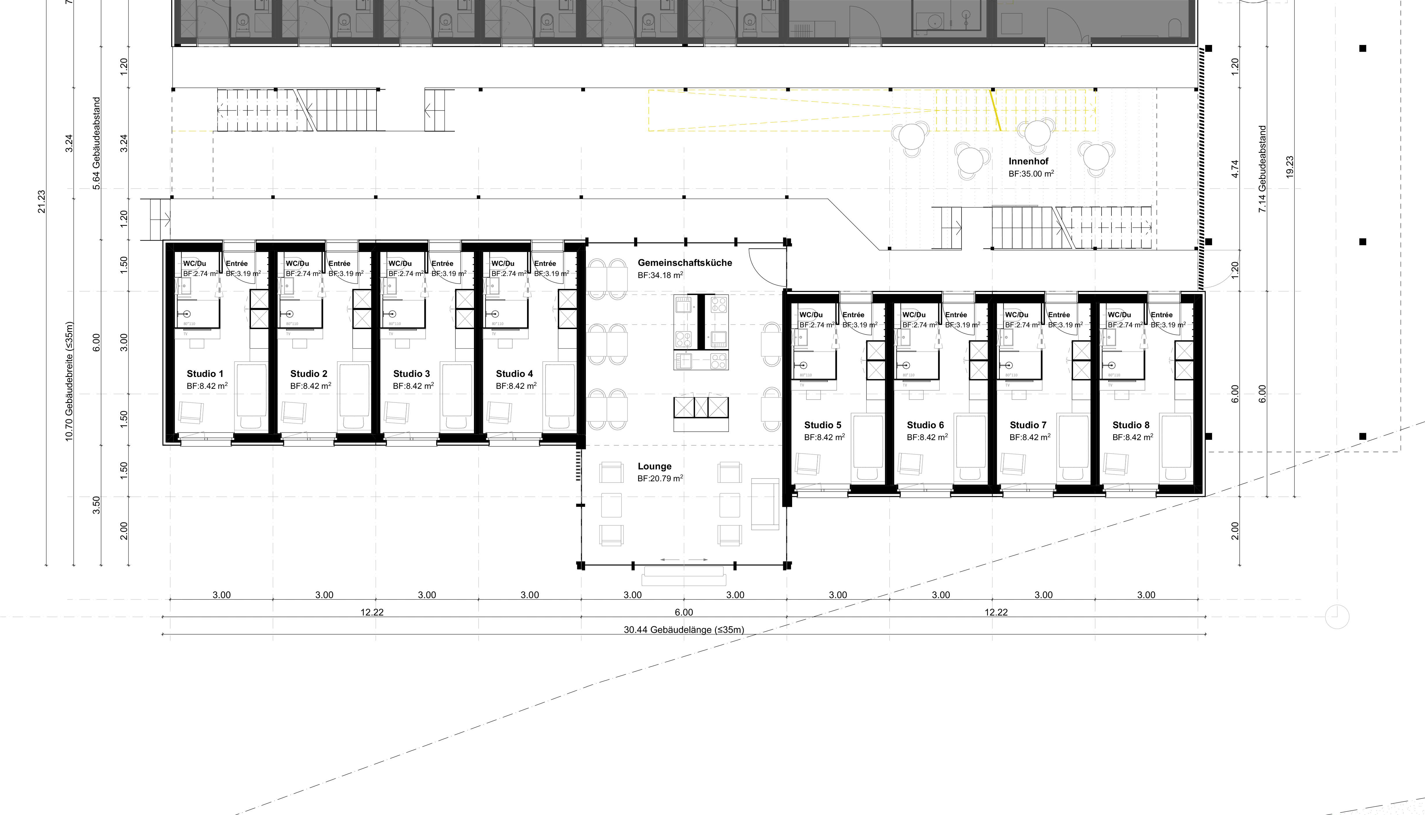
Grundriss

Beschrieb

Visualisierung gemeinschaftlicher Wohnbereich

Beschrieb

Visualisierung Gemeinschaftsküche