atelier  pulfer  aeberhard

Seilerstrasse 8  |   3011 Bern   |   +41 76 346 69 60   |   atelier@pulfer-aeberhard.ch

info

Studentenwohnheim, Hotelfachschule Passugg

(In Ausführung) Das Projekt des temporären Studierendenwohnheims im Riedwisli umfasst zwei Neubauten mit insgesamt zwanzig Zimmern in Holzmodulbauweise. Die Gebäude sind in eine Tallandschaft eingebunden, aus welcher auch das Passugger-Mineralwasser entspringt und steht visuell in Bezug mit dem historischen Hauptgebäude der Hotelfachschule. Es ist eine idyllische Lage, welche den Studierenden etwas Distanz vom allgemeinen Unterrichtsbetrieb schafft.

Die bestehende Erschliessungsstrasse legt eine grösstmögliche Vorproduktion nahe. So wurde eine Bauweise entwickelt, welche den besonderen Rahmenbedingungen Rechnung trägt. Zwei im Werk gefertigte Holzmodule werden dabei vor Ort gemeinsam zu einem Zimmer mit Nasszelle gefügt. Insgesamt zwanzig Zimmer werden in zwei doppelstöckige Gebäude aufgeteilt und aufgrund der temporären Nutzungsdauer relativ rational ins Terrain gesetzt. Zwei vorgelagerte Laubengänge dienen als Erschliessung. Sobald die Provisorien nicht mehr benötigt werden, sind diese auf einfache Weise an anderen Orten wiederverwendbar.

Projekt: 2024-2026

Ort: Passugg (GR)

Bauherrschaft: EHL Passugg

Schema

Aufgrund der kleinen Erschliessungsstrasse werden zwei vorfabrizierte Holzmodule vor Ort zu einem Studio gefügt

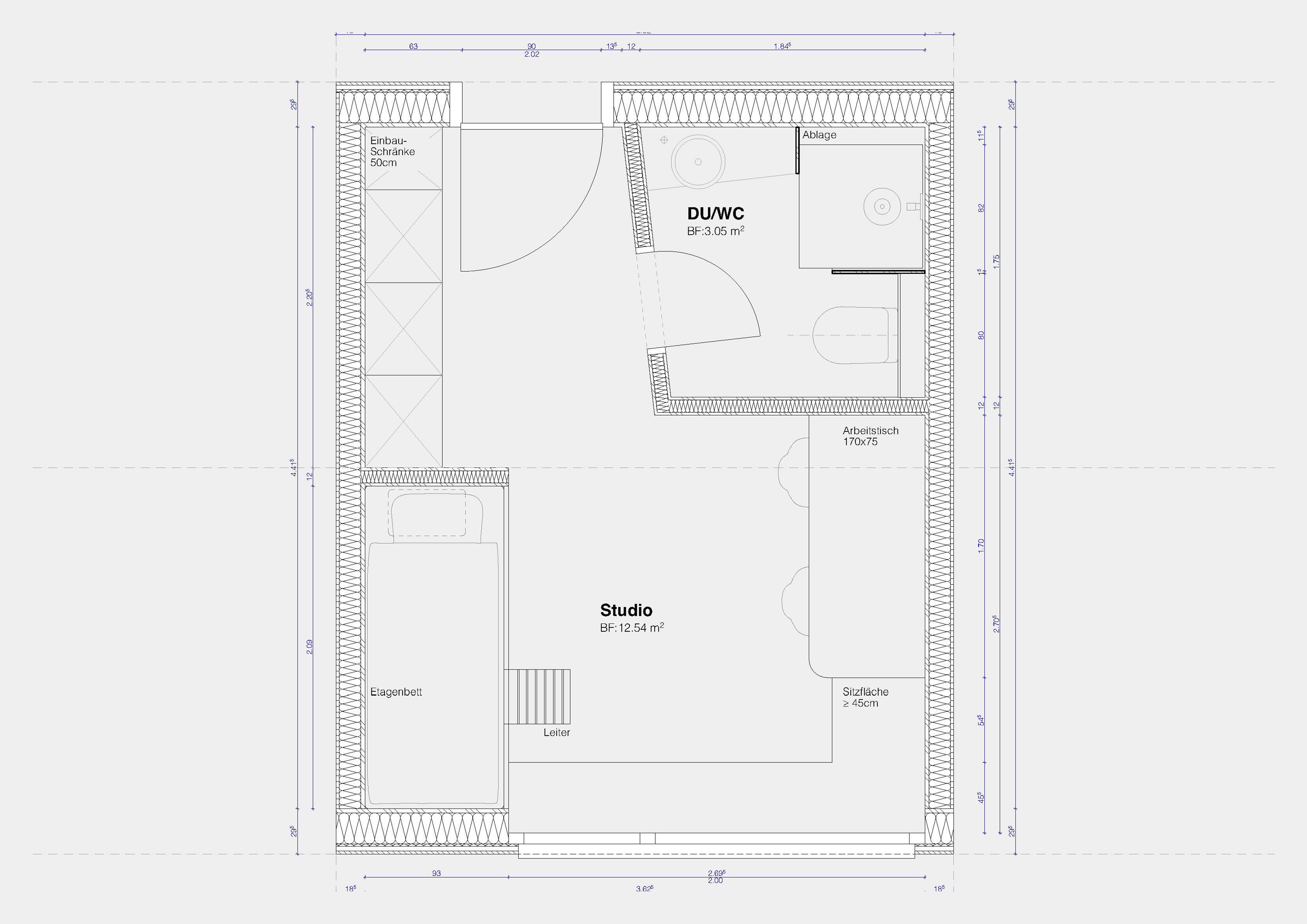
Grundriss 1:20

Grundriss eines Studios   1:20

Schema

Hauptgebäude der Hotelfachschule

Visualisierung EHL Passugg Sitznische

Die Module werden zur Zeit beim Holzbauer vorgefertigt

Visualisierung EHL Passugg Sitznische

Entrée-Bereich

Visualisierung EHL Passugg Sitznische

Blick zurück

Visualisierung EHL Passugg Sitznische

Visualisierung Sitznische